ARCHITECT ENGINEER

TWO-STORY RESIDENTIAL BUILDING

The building is located in the traditional settlement of Agia Marina in Lesvos, on a plot with a steep slope that to the east has a view of the sea and the Turkish coasts, and to the north the castle and the city of Mytilene. The massing, morphology, and placement of the building on the plot were shaped based on the architectural characteristics of the settlement, the geomorphology of the terrain, and the applicable urban planning regulations.

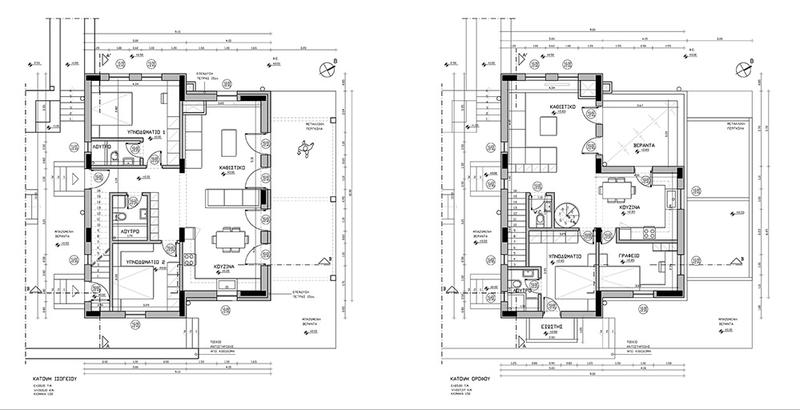
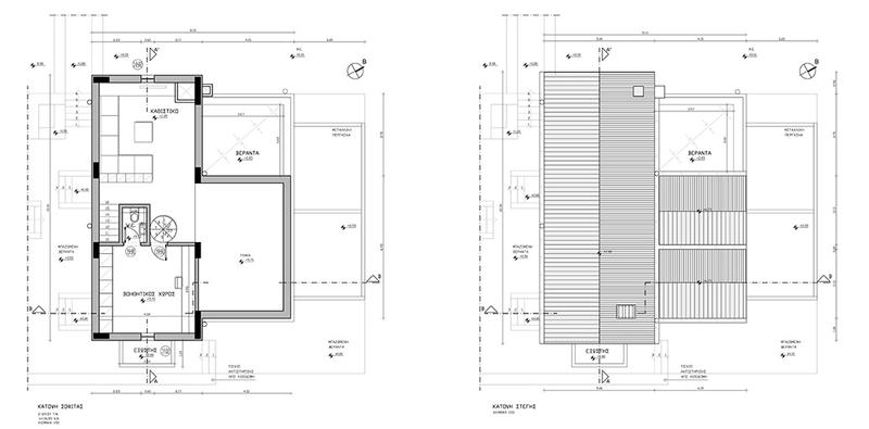
The two residences were organized on successive levels. The main design axis was the gradation of the building volume and its adaptation to the scale of the settlement. Thus the building is split into three volumes: a two-story one with small openings, which is placed with its back towards the busy road and the central square of the settlement, the second volume with visible masonry on the ground floor and plaster of different color on the upper floor.

The ground floor section, which includes the first residence, has an area of 100.00 sq.m., while the second residence is organized on the upper floor, which includes a loft and veranda and has an area of 85.80 sq.m. A ground floor warehouse is also designed on the plot, which is integrated into the terrain relief. In conclusion, it is found that a new building can be harmoniously integrated into a traditional environment, without copying forms, but by adopting certain principles and relationships that stem from the study of the data of the specific place.