ΑΛΕΞΑΝΔΡΑ ΚΑΛΛΙΤΣΑ
ΑΡΧΙΤΕΚΤΟΝΑΣ ΜΗΧΑΝΙΚΟΣ
ΑΛΕΞΑΝΔΡΑ ΚΑΛΛΙΤΣΑ
EL
|
EN
01
Αρχική
02
Σχετικά
03
Έργα
04
Επικοινωνία
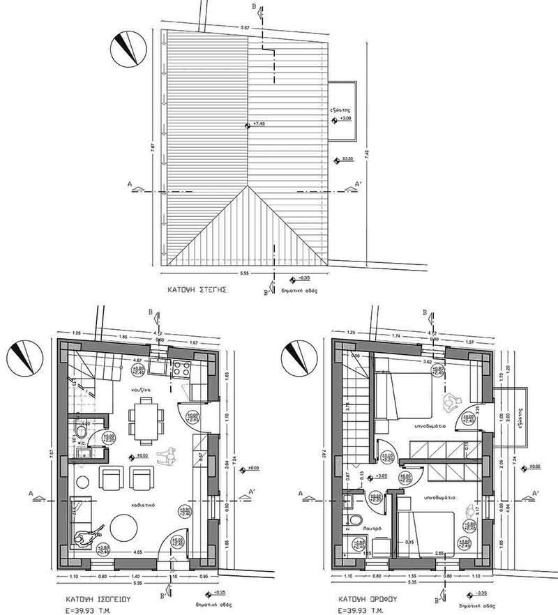
ΔΙΩΡΟΦΗ ΚΑΤΟΙΚΙΑ ΣΕ ΠΑΡΑΔΟΣΙΑΚΟ ΟΙΚΙΣΜΟ
ΟΛΑ ΤΑ ΕΡΓΑ